Warsztat z halą i biurem, Olsztyn ul. Tracka 5
Olsztyn Pokaż na mapie ›
Dodane: Poniedziałek, 15 Grudzień, 2025 15:20
699 000 zł
Szczegóły ogłoszenia
- Kategoria: Inne nieruchomości / Sprzedaż
- Powierzchnia:207 m2
- Sprzedaż:Pośrednik
- Cena: 699 000 zł
Opis oferty
Na sprzedaż funkcjonalna nieruchomość o powierzchni użytkowejokoło 207 m2, położona w dobrze skomunikowanej, przemysłowej
części Olsztyna – przy ul. Tracka 5.
Budynek parterowy, przystosowany do działalności warsztatowej, z
pełnym zapleczem technicznym, biurowym i magazynowym.
Obiekt jest obecnie wynajmowany jako warsztat samochodowy z czterema
stanowiskami serwisowymi (sprzedaż bez wyposażenia warsztatowego).
Stan techniczny budynku oraz jego układ pozwalają na kontynuację
działalności lub nową adaptację – bez konieczności ponoszenia
dodatkowych nakładów inwestycyjnych.
LOKALIZACJA:
Nieruchomość zlokalizowana jest przy ul. Tracka 5 w Olsztynie, w
części miasta o ugruntowanej funkcji
handlowo-usługowo-produkcyjnej, gdzie działają liczne warsztaty,
hurtownie, zakłady techniczne i serwisy.
Dojazd do nieruchomości odbywa się drogą asfaltową, z końcowym
odcinkiem wykonanym z płyt betonowych – umożliwiającym swobodny
wjazd również dla pojazdów dostawczych i serwisowych.
Dojazd z centrum miasta zajmuje około 10 minut. Przed budynkiem
znajduje się utwardzony plac z możliwością parkowania nawet 10
samochodów.
NIERUCHOMOŚĆ:
Budynek parterowy o powierzchni użytkowej około 207 m2 znajduje się
na działce o powierzchni 383 m2. Teren obejmuje zabudowę oraz
utwardzony podjazd z przodu budynku, przystosowany do codziennej
obsługi serwisowej – z wygodnym dojazdem i manewrowaniem dla
pojazdów klientów.
Obiekt został wybudowany w 1976 roku, a w 2015 roku przeszedł
kompleksową modernizację, która objęła m.in. wymianę instalacji,
modernizację wnętrz, remont elewacji oraz przystosowanie przestrzeni
do współczesnych standardów użytkowych.
Lokal charakteryzuje się przejrzystym i praktycznym układem, który
został zaadaptowany z myślą o działalności warsztatowej.
Jednocześnie jego rozkład oraz infrastruktura techniczna dają
szerokie możliwości adaptacyjne – sprawdzi się także jako
siedziba firmy usługowej, niewielka produkcja czy przestrzeń
magazynowa.
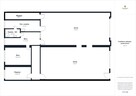
UKŁAD POMIESZCZEŃ: Dwie hale warsztatowe – po około 70 m2 każda
Biuro – 14,5 m2
Drugie biuro – 11,9 m2
Pomieszczenie socjalne – 12 m2
Magazyn 1 – 8 m2
Magazyn 2 – 16,8 m2
Toaleta / WC – 3,8 m2
Każda hala posiada osobną bramę wjazdową o dużym świetle, co
umożliwia pracę z pojazdami osobowymi, dostawczymi.
MEDIA I INSTALACJE: Prąd trójfazowy (siła)
Woda i kanalizacja miejska
Ogrzewanie olejowe
Internet
Monitoring
INFORMACJE DODATKOWE: Forma własności: budynek stanowi pełną
własność
Grunt: użytkowanie wieczyste
Księga wieczysta: prowadzona, bez obciążeń
Udział w drodze dojazdowej: tak
Dostępność: lokal dostępny po okresie wypowiedzenia umowy najmu
MOŻLIWOŚĆ ZAKUPU DWÓCH SĄSIADUJĄCYCH LOKALI!
Prezentowany lokal bezpośrednio sąsiaduje z drugim, również
dostępnym w sprzedaży. Istnieje możliwość zakupu obu budynków
– łącznie ponad 400 m2 powierzchni użytkowej i niemal 1100 m2
terenu.
Drugi lokal stanowi niezależny obiekt produkcyjno-usługowy po
kapitalnym remoncie, wyposażony w hale, biura, zaplecze socjalne oraz
dwustanowiskowy garaż blaszany na utwardzonym placu. To wyjątkowa
okazja dla inwestorów lub firm szukających kompleksowego zaplecza
operacyjnego w jednej lokalizacji.
Zapraszamy do kontaktu i umówienia się na prezentację.
Z przyjemnością odpowiem na wszystkie pytania i pomogę w
przeprowadzeniu bezpiecznej i sprawnej transakcji.
Oferta dostępna wyłącznie w naszym biurze – TreeHouse
Nieruchomości.
Współpracujemy również z innymi agencjami.
Opiekun oferty:
Adrian Gazda
Tel. 668 - pokaż numer telefonu -
E-mail: @
TreeHouse Nieruchomości - Skuteczna Sprzedaż Nieruchomości
ul. Kotańskiego 1, lok. 102, 10-166 Olsztyn
@
www.treehouse-nieruchomosci.pl
TreeHouse Nieruchomości - nr 1 w województwie warmińsko-mazurskim w
konkursie Lider Otodom 2022
"Niniejsze ogłoszenie nie stanowi oferty w rozumieniu art. 66 par. 1
Kodeksu Cywilnego i ma jedynie charakter informacyjny.
Właścicielem ogłoszenia oraz poszczególnych jego elementów jest
TreeHouse Nieruchomości oraz podmioty z nim współpracujące.
Wszelkie prawa są zastrzeżone. Kopiowanie, rozpowszechnianie oraz
korzystanie z niniejszych materiałów w jakikolwiek inny sposób
wykraczający poza dozwolony użytek określony przepisami ustawy z 4
lutego 1994 r. o prawie autorskim i prawach pokrewnych (Dz. U. 1994,
nr 24 poz. 83 z późn. zm.) bez pisemnej zgody TreeHouse
Nieruchomości lub podmiotów współpracujących jest zabronione i
może stanowić podstawę odpowiedzialności cywilnej oraz karnej."
Sprawdź zainteresowanie tym ogłoszeniem
Wyświetlenia
Data dodania
Ostatnio widziany
Obserwujących
Wysłane zapytania
Odsłony telefonu
- Wypromuj ogłoszenie
- Zgłoś naruszenie
- Drukuj ulotkę
- Edytuj/usuń ogłoszenie
- Udostępnij ogłoszenie
- Dodaj na Facebook

























