Śródmieście, lokal na parterze, 200 m2, witryna
Olsztyn / Śródmieście Pokaż na mapie ›
Dodane: Piątek, 27 Marzec, 2026 18:38
8 700 zł
Szczegóły ogłoszenia
- Kategoria: Inne nieruchomości / Do wynajęcia
- Powierzchnia:199 m2
- Sprzedaż:Pośrednik
- Cena: 8 700 zł
Opis oferty
Do wynajęcia atrakcyjny lokal użytkowy na parterze, idealny doprowadzenia działalności biurowej - sprawdzi się doskonale pod
kancelarie prawną, biuro rachunkowe, projektowe, geodezyjne itp.
Obejrzyj WIRTUALNY SPACER: https://sb360.online/nu5u4f (jeśli nie
widzisz linku skontaktuj się z pośrednikiem).
LOKALIZACJA
Nieruchomość położona blisko centrum przy ul. Marii
Curie-Skłodowskiej 18/20. Doskonała komunikacja z każdą częścią
miasta, do przystanku tramwajowego 400 m, do przystanku autobusowego
150 m.
W pobliżu znajdują się: Stare Miasto, Teatr Jaracza, Ratusz, Sąd
Rejonowy, Dworzec Zachodni, Centrum Handlowe Aura, kancelarie, sklepy
(Biedronka, Żabka), piekarnia, żłobek, przedszkole, szkoły,
restauracje i wiele innych punktów usługowych.
Dojazd do budynku drogą asfaltową.
BUDYNEK
Budynek 4 piętrowy, z windą, z podjazdem dla niepełnosprawnych,
wybudowany w nowej technologii w 2005 r.
Sąsiedztwo ciche i spokojne, większość lokali w budynku
użytkowana jako biura.
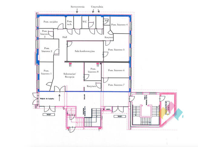
LOKAL
Lokal położony na parterze, o pow. 199,02 m2.
Składa się z 8 oddzielnych pokoi biurowych, recepcji, sali
konferencyjnej, pokoju socjalnego, pomieszczenia technicznego,
serwerowni, toalety damskiej i męskiej, holu, korytarza.
Rozkład pomieszczeń (pomiary poglądowe):
- pom. biurowe 1 - 9,7 m2
- pom. biurowe 2 - 13,3 m2
- pom. biurowe 3 - 5,3 m2
- pom. biurowe 4 - 10,2 m2
- pom. biurowe 5 - 23,8 m2
- pom. biurowe 6 - 10,6 m2
- pom. biurowe 7 - 12,8 m2
- pom. biurowe 8 - 6,3 m2
- recepcja/ sekretariat - 27,5 m2
- sala konferencyjna - 26 m2
- pom. socjalne - 9,4 m2
- pom. tech. - 2,5 m2
- serwerownia - 2,5 m2
- umywalnia x2 - 2,5 m2, 2,5 m2
- WC x2 - 1,1 m2, 1,5 m2
- hall - 19 m2
- korytarz x2 - 2,5 m2, 4,5 m2
Przestronny, rozkładowy - idealny pod działalność biurową.
Dwustronna wystawa okien. Okna drewniane 2-szybowe.
Na podłodze panele, terakota oraz wykładzina.
Ogrzewanie miejskie.
Do lokalu przynależy komórka lokatorska o pow. 9,6 m2, położona na
tej samej kondygnacji.
STAN PRAWNY/OPŁATY/DOSTĘPNOŚĆ
Pełna własność. Bez obciążeń.
Lokal dostępny od zaraz.
Cena najmu 8700 zł netto + czynsz administracyjny + prąd wg
zużycia.
Czynsz administracyjny wraz z funduszem remontowym wynosi 1820 zł.
Budynkiem zarządza Wspólnota Mieszkaniowa.
POŚREDNIK:
Marlena Gwiazda
tel. 797 - pokaż numer telefonu -
email: @
Nr licencji: 31504
Przedstawiona oferta cenowa ma charakter informacyjny, nie stanowi
oferty handlowej w rozumieniu art. 66 § 1 Kodeksu Cywilnego.
Właścicielem ogłoszenia wraz z jej elementami jest NewHouse Łukasz
Wróbel oraz podmioty współpracujące.
Wszelkie prawa są zastrzeżone, kopiowanie, rozpowszechnianie oraz
korzystanie z niniejszych składowych materiałów ogłoszenia w
jakikolwiek inny sposób wykraczający poza dozwolony użytek
określony przepisami ustawy z 4 lutego 1994 r. o prawie autorskim i
prawach pokrewnych (Dz. U. 1994, nr 24 poz. 83 z późn. zm.) bez
zgody NewHouse Łukasz Wróbel lub podmiotów współpracujących jest
zabronione i może stanowić podstawę odpowiedzialności cywilnej
oraz karnej.
Niniejsze materiały stanowią tajemnicę firmy NewHouse Łukasz
Wróbel lub podmiotów współpracujących w rozumieniu ustawy z dnia
16 kwietnia 1993 r. o zwalczaniu nieuczciwej konkurencji (Dz. U. z
2003 r., Nr 153, poz. 1503 z późn. zm.).
Niniejsze ogłoszenie nie stanowi oferty w rozumieniu Kodeksu
Cywilnego, lecz ma charakter informacyjny.
Sprawdź zainteresowanie tym ogłoszeniem
Wyświetlenia
Data dodania
Ostatnio widziany
Obserwujących
Wysłane zapytania
Odsłony telefonu

New House
Konto firmowe
Na Lento.pl od 04 gru 2019
Strona użytkownika
- Wypromuj ogłoszenie
- Zgłoś naruszenie
- Drukuj ulotkę
- Edytuj/usuń ogłoszenie
- Udostępnij ogłoszenie
- Dodaj na Facebook































