Piętro w biurowcu, 138 m2, po remoncie
Olsztyn / Podgrodzie Pokaż na mapie ›
Dodane: Piątek, 27 Marzec, 2026 18:38
5 800 zł
Szczegóły ogłoszenia
- Kategoria: Inne nieruchomości / Do wynajęcia
- Powierzchnia:138 m2
- Sprzedaż:Pośrednik
- Cena: 5 800 zł
Opis oferty
Lokale biurowe o łącznej powierzchni 138 m2, znajdujące się (dowyboru) na 1. lub 2. piętrze budynku będącego w trakcie generalnego
remontu. Po zakończeniu prac lokale zostaną oddane w bardzo dobrym
standardzie, z wykończonymi ścianami, podłogą z gresu oraz
sprawnymi instalacjami. Istnieje możliwość wynajęcia obu pięter
wraz z holem, co zapewnia wyłączność na całą część budynku z
niezależnym wejściem. Nieruchomość zlokalizowana jest przy Alei
Obrońców Tobruku - jednej z głównych ulic Olsztyna, z bardzo
dobrym dojazdem oraz dostępem do komunikacji miejskiej.
LOKALIZACJA
Nieruchomość położona jest w doskonałej lokalizacji przy Alei
Obrońców Tobruku - jednej z głównych ulic przelotowych Olsztyna. W
otoczeniu znajdują się zabudowa przemysłowa, mieszkaniowa
wielorodzinna. W pobliżu znajduje się zakład produkcyjny Schwarte
Group, salon samochodowy Resma – Citroen, Jeep, Fiat, Studium
Języków Obcych UWM, Eranova, Browar Kormoran.
Dojazd i dostępność nieruchomości są bardzo dogodne, włączając
ulice asfaltowe i wewnętrzną sieć dróg.
Komunikacja miejska – w niewielkiej odległości od budynku
znajdują się liczne przystanki autobusowe oraz tramwajowe.
DZIAŁKA
Nieruchomość znajduje obszarze gruntu o powierzchni 1,2 ha.
Nieruchomość jest solidnie ogrodzona, urządzona. Posiada część
komunikacyjną o nawierzchni asfaltowej oraz częściowo betonowej;
zapewnia dogodny dostęp do budynku.
Działka jest uzbrojona w pełną infrastrukturę techniczną (sieć
wodociągowa, telekomunikacyjna, kanalizacja sanitarna, deszczowa,
elektroenergetyczna – własna trafostacja, sieć gazowa).
Plac oświetlony. Dogodny dojazd do obiektu z dwóch stron:
bezpośredni zjazd od Alei Obrońców Tobruku oraz od Alei Gen.
Sikorskiego w ramach służebności gruntowej.
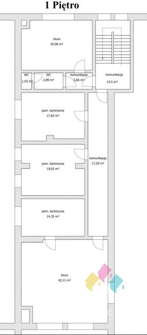
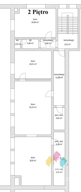
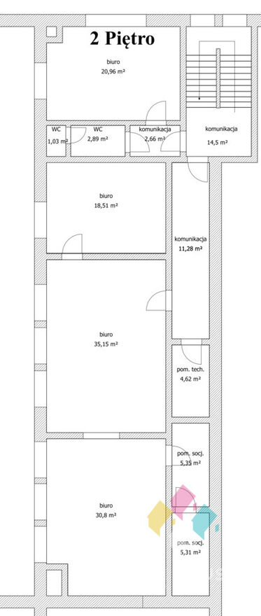
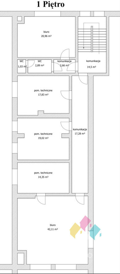
LOKAL
Oferta dotyczy powierzchni położonej na jednym z dwóch pięter (1 i
2 piętro) o tej samej powierzchni, lecz o różnym układzie
funkcjonalnym. Powierzchnia każdego piętra wynosi 138 m2.
Obiekt jest obecnie w trakcie generalnego remontu, obejmującego
wymianę instalacji, posadzek oraz kompleksowe wykończenie ścian
(szpachlowanie i malowanie). Na podłodze znajdzie się szary gres,
ściany będą pomalowane na biało. Instalacje elektryczna i
hydrauliczna będą w pełni sprawne i gotowe do użytkowania. Lokale
zostaną przekazane najemcy po zakończeniu prac, w standardzie
dostosowanym do działalności biurowej.
Na każdym piętrze znajduje się łazienka z WC.
Wejście do lokali prowadzi przez hol. W przypadku wynajęcia pięter
przez dwóch niezależnych najemców, hol będzie stanowił część
wspólną.
Wejście do budynku znajduje się od boku. Bezpośrednio przy wejściu
dostępne są miejsca parkingowe, a teren posiada wygodny wjazd.
Dokładne wymiary pomieszczeń podane na rzucie i tabeli piętra.
DOSTĘPNOŚĆ/ CENA
Cena najmu - 5800 zł netto/msc
Woda, ścieki, śmieci - 50 zł netto/msc
Ogrzewanie- sezon grzewczy ok. 800-1200 zł netto/msc, poza sezonem
ok. 300 zł netto/msc
Prąd według zużycia - podlicznik na piętro
Jednorazowa kaucja w wysokości 5800 zł
Istnieje możliwość wynajęcia dwóch pięter wraz z holem
wejściowym o łącznej powierzchni 350 m², co zapewnia najem całej
wydzielonej części budynku z niezależnym wejściem.
POŚREDNIK
Mikołaj Matejko
Tel: 518 - pokaż numer telefonu -
Email: @
Licencja pośrednika nr 31537.
Przedstawiona oferta cenowa ma charakter informacyjny, nie stanowi
oferty handlowej w rozumieniu art. 66 § 1 Kodeksu Cywilnego.
Właścicielem ogłoszenia wraz z jej elementami jest NewHouse Łukasz
Wróbel oraz podmioty współpracujące.
Wszelkie prawa są zastrzeżone, kopiowanie, rozpowszechnianie oraz
korzystanie z niniejszych składowych materiałów ogłoszenia w
jakikolwiek inny sposób wykraczający poza dozwolony użytek
określony przepisami ustawy z 4 lutego 1994 r. o prawie autorskim i
prawach pokrewnych (Dz. U. 1994, nr 24 poz. 83 z późn. zm.) bez
zgody NewHouse Łukasz Wróbel lub podmiotów współpracujących jest
zabronione i może stanowić podstawę odpowiedzialności cywilnej
oraz karnej.
Niniejsze materiały stanowią tajemnicę firmy NewHouse Łukasz
Wróbel lub podmiotów współpracujących w rozumieniu ustawy z dnia
16 kwietnia 1993 r. o zwalczaniu nieuczciwej konkurencji (Dz. U. z
2003 r., Nr 153, poz. 1503 z późn. zm.).
Niniejsze ogłoszenie nie stanowi oferty w rozumieniu Kodeksu
Cywilnego, lecz ma charakter informacyjny.
Sprawdź zainteresowanie tym ogłoszeniem
Wyświetlenia
Data dodania
Ostatnio widziany
Obserwujących
Wysłane zapytania
Odsłony telefonu

New House
Konto firmowe
Na Lento.pl od 04 gru 2019
Strona użytkownika
- Wypromuj ogłoszenie
- Zgłoś naruszenie
- Drukuj ulotkę
- Edytuj/usuń ogłoszenie
- Udostępnij ogłoszenie
- Dodaj na Facebook































