Staromiejska, mieszkanie idealne pod inwestycję
Olsztyn Pokaż na mapie ›
Dodane: Piątek, 13 Marzec, 2026 14:36
420 000 zł
10244 zł/m2
Szczegóły ogłoszenia
- Kategoria: Mieszkania / Sprzedaż
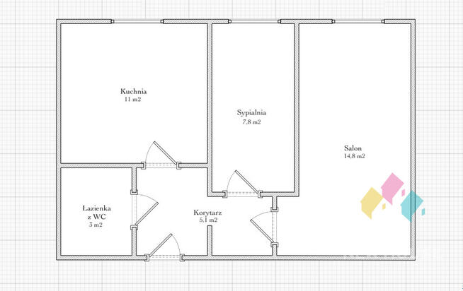
- Powierzchnia:41 m2
- Liczba pokoi:2 pokoje
- Zabudowa:Kamienica
- Tech. budowy:Cegła
- Piętro :2 piętro
- Liczba pięter:2 piętra
- Rynek:Wtórny
- Rok budowy:1950
- Sprzedaż:Pośrednik
- Cena: 420 000 zł / 10244 zł/m2
Opis oferty
Schludne, 2 pokojowe mieszkanie położone na Starym Mieście, idealnedla singla, pary, sprawdzi się również inwestycyjnie. Miejsce dla
dynamicznych i aktywnych osób ceniących łatwy dostęp do wszelkich
miejskich atrakcji i udogodnień.
Obejrzyj link do wirtualnego spaceru: https://sb360.online/yxi5rn
(jeśli nie widzisz linku skontaktuj się z pośrednikiem)
LOKALIZACJA:
• Olsztyn, Stare Miasto, ulica Staromiejska 2/5
• Lokal mieści się w w budynku z lat 60, budynek nie jest wpisany
do rejestru zabytków.
• Dojazd drogą asfaltową, dzięki temu do budynku dojechać można
samochodem,
• W odległości 20m przystanek autobusowy i tramwajowy - bliskość
środków komunikacji miejskiej umożliwia łatwy dojazd do każdej
części miasta, a większość punktów usługowych jest na
wyciągnięcie ręki.
• Obok budynku parking dla mieszkańców dostępny za szlabanem.
• W sąsiedztwie znajdują się liczne sklepy, banki, restauracje,
apteki, Centrum Handlowe Aura, Urząd Miasta, Sąd Rejonowy,
kancelarie notarialne i inne punkty handlowo-usługowe
• W okolicy Park Centralny Park Podzamcze - miejsca dla
miłośników spacerów, sportów rowerowych.
BUDYNEK/MIESZKANIE:
Budynek 2-piętrowy, wybudowany w 1950 roku. Dach pokryty dachówką
ceramiczną.
Mieszkanie 2-pokojowe, położone na II piętrze o pow. 41,74 m2.
Składa się z:
- oddzielnej kuchni (11 m2)
- salonu (14,8 m2),
- sypialni (7,8 m2)
- łazienki z WC z wanną (3 m2)
- korytarzu (5,1 m2)
Umeblowane oraz wyposażone (lodówka, zmywarka, piekarnik, płyta,
okap, pralka).
Na podłodze głównie parkiet oraz terakota. Okna PCV. Ogrzewanie
miejskie.
Do mieszkania przynależy piwnica.
DOSTĘPNOŚĆ/OPŁATY:
Pełna własność. Bez obciążeń.
Termin wydania do uzgodnienia.
Czynsz administracyjny wynosi ok. 700 zł/2 osoby.
Budynkiem zarządza wspólnota mieszkaniowa.
POŚREDNIK
Marlena Gwiazda
tel. 797 - pokaż numer telefonu -
email: @
Licencja pośrednika nr 31504.
Przedstawione oferta cenowa ma charakter informacyjny, nie stanowi
oferty handlowej w rozumieniu art. 66 §1 Kodeksu Cywilnego.
Właścicielem ogłoszenia wraz z jej elementami jest NewHouse Łukasz
Wróbel oraz podmioty współpracujące.
Wszelkie prawa są zastrzeżone, kopiowanie, rozpowszechnianie oraz
korzystanie z niniejszych składowych materiałów ogłoszenia w
jakikolwiek inny sposób wykraczający poza dozwolony użytek
określony przepisami ustawy z 4 lutego 1994 r. o prawie autorskim i
prawach pokrewnych (Dz. U. 1994, nr 24 poz. 83 z późn. zm.) bez
zgody NewHouse Łukasz Wróbel lub podmiotów współpracujących jest
zabronione i może stanowić podstawę odpowiedzialności cywilnej
oraz karnej.
Niniejsze materiały stanowią tajemnicę firmy NewHouse Łukasz
Wróbel lub podmiotów współpracujących w rozumieniu ustawy z dnia
16 kwietnia 1993 r. o zwalczaniu nieuczciwej konkurencji (Dz. U. z
2003 r., Nr 153, poz. 1503 z późn. zm.).
Niniejsze ogłoszenie nie stanowi oferty w rozumieniu Kodeksu
Cywilnego, lecz ma charakter informacyjny.
Powiadom o podobnych ogłoszeniach
Lokalizacja: Olsztyn
Kategoria: Nieruchomości » Mieszkania » Sprzedaż
Cena: od 357000 zł do 483000 zł Powierzchnia : od 35 m2 do 47 m2
Chcę otrzymywać powiadomienia o nowych ofertach

New House
Konto firmowe
Na Lento.pl od 04 gru 2019
Strona użytkownika
- Wypromuj ogłoszenie
- Zgłoś naruszenie
- Drukuj ulotkę
- Edytuj/usuń ogłoszenie
- Udostępnij ogłoszenie
- Dodaj na Facebook





























