Olsztyn - Gutkowo nowe mieszkania
Olsztyn Pokaż na mapie ›
Ogłoszenie archiwalne Wygasło: Wtorek, 28 Październik, 2025 15:33
499 000 zł
6836 zł/m2
Szczegóły ogłoszenia
- Kategoria: Mieszkania / Sprzedaż
- Powierzchnia:73 m2
- Zabudowa:Inne
- Piętro :2 piętro
- Liczba pięter:2 piętra
- Rynek:Pierwotny
- Rok budowy:2025
- Sprzedaż:Pośrednik
- Cena: 499 000 zł / 6836 zł/m2
Opis oferty
Nowa Inwestycja deweloperska w Gutkowie komfortowe apartamenty z ogrodem lub tarasem!Marzysz o własnym miejscu w spokojnej, zielonej okolicy, a jednocześnie z łatwym dostępem do udogodnień miejskich? Przedstawiamy wyjątkową inwestycję deweloperską w Olsztynie, w malowniczej dzielnicy Gutkowo!
Oferujemy 10 bezczynszowych apartamentów zlokalizowanych w pięciu nowoczesnych budynkach w zabudowie szeregowej. To idealne rozwiązanie dla osób ceniących sobie prywatność, przestrzeń i bliskość natury.
Dostępne apartamenty:
W ramach inwestycji dostępne są dwa typy apartamentów, dopasowane do różnych potrzeb:
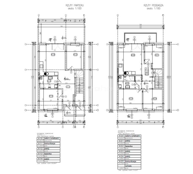
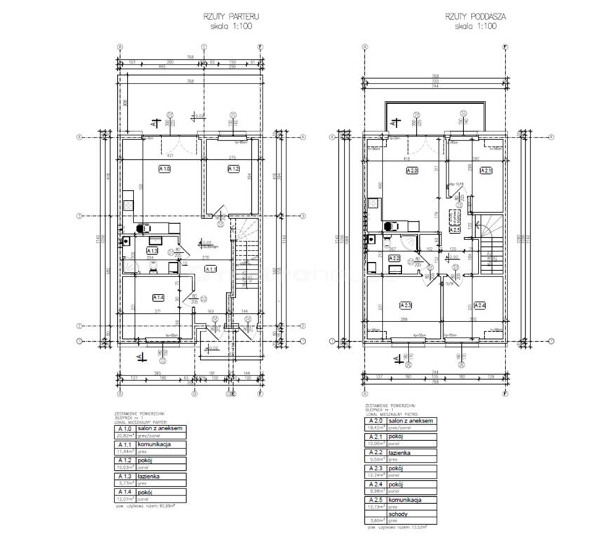
Apartamenty na parterze (60,69 m kw.) z ogródkami:
Przestronny salon z aneksem kuchennym (20,82 m kw.)
Dwa komfortowe pokoje (10,63 m kw. i 12,07 m kw.)
Funkcjonalna łazienka (5,73 m kw.)
Przestronna komunikacja (11,44 m kw.)
Prywatny ogródek, idealny do wypoczynku i rekreacji.
Cena: 479 000 zł
Apartamenty na piętrze (73,52 m kw.) z tarasami:
Jasny salon z aneksem kuchennym (19,42 m kw.)
Trzy ustawne pokoje (10 m kw., 12,24 m kw. i 9,98 m kw.)
Funkcjonalna łazienka (5,55 m kw.)
Komunikacja (12,73 m kw.) oraz schody (3,60 m kw.)
Wyjście na taras, doskonały na poranną kawę czy wieczorny relaks.
Cena: 499 000 zł
Wyjątkowe udogodnienia:
Do każdego apartamentu przynależą dwa własne miejsca postojowe, co gwarantuje wygodę i brak problemów z parkowaniem. Wszystkie lokale oddawane są w stanie deweloperskim, co daje Państwu pełną swobodę w aranżacji wnętrz według własnych upodobań.
Idealna lokalizacja:
Apartamenty położone są w cichej, zielonej okolicy Gutkowa, w otoczeniu domków jednorodzinnych. Lokalizacja ta łączy spokój z doskonałym dostępem do infrastruktury:
Szkoła Podstawowa: 1 km
Przedszkole: 1 km
Jezioro: 1,5 km
Sklepy: 1 km
Bliskość obwodnicy, zapewniająca szybki dojazd do innych części miasta.
Ścieżki rowerowe i las, idealne dla miłośników aktywnego wypoczynku i obcowania z naturą.
Termin zakończenia inwestycji:
Planowany termin zakończenia inwestycji to grudzień 2025 roku. Nie przegap tej wyjątkowej szansy na zamieszkanie w Olsztynie w komfortowym apartamencie!
Skontaktuj się z nami już dziś, aby dowiedzieć się więcej i umówić się na prezentację!
Czy wiesz, że możemy przygotować dla Ciebie prezentację on-line nieruchomości? Skontaktuj się z naszym Agentem i zapytaj o szczegóły.
Pomimo, iż Doradcy Metrohouse przykładają szczególną staranność do rzetelnego prezentowania informacji o nieruchomości, nie zawsze jest możliwa weryfikacja wszystkich danych przekazanych od osób trzecich. Niniejsza prezentacja oferty nie jest ofertą w rozumieniu Kodeksu Cywilnego i ma charakter wyłącznie informacyjny.
Sprawdź zainteresowanie tym ogłoszeniem
Wyświetlenia
Data dodania
Ostatnio widziany
Obserwujących
Wysłane zapytania
Odsłony telefonu
Powiadom o podobnych ogłoszeniach
Lokalizacja: Olsztyn
Kategoria: Nieruchomości » Mieszkania » Sprzedaż
Cena: od 424000 zł do 574000 zł Powierzchnia : od 62 m2 do 84 m2
Chcę otrzymywać powiadomienia o nowych ofertach
To ogłoszenie jest archiwalne i może być nieaktualne.
- Wypromuj ogłoszenie
- Zgłoś naruszenie
- Drukuj ulotkę
- Edytuj/usuń ogłoszenie
- Udostępnij ogłoszenie
- Dodaj na Facebook











