Lokal w centrum miasta, b. dobry standard
Olsztyn Pokaż na mapie ›
Odświeżone: Piątek, 31 Październik, 2025 07:39
3 000 zł
Szczegóły ogłoszenia
- Kategoria: Inne nieruchomości / Do wynajęcia
- Powierzchnia:39 m2
- Sprzedaż:Pośrednik
- Cena: 3 000 zł
Opis oferty
Lokal użytkowy idealny pod działalność usługową/biurowązlokalizowany przy ul. Knosały w ciągu ruchu pieszego. Lokal w
bardzo dobrym standardzie, zlokalizowany na parterze z dwustronną
witryną okienną.
LOKALIZACJA
Lokal położony w świetnej lokalizacji w centrum Olsztyna, blisko
Parku Centralnego oraz rzeki Łyny. W sąsiedztwie znajdują się
różne punkty usługowe. Obiekt zlokalizowany blisko przystanku
autobusowego, dzięki temu do lokalu dojechać można zarówno
samochodem, jak i komunikacją miejską. Dojazd do budynku drogą
asfaltową. Miejsca postojowe ogólnodostępne, docelowe jedno z tyłu
budynku.
LOKAL
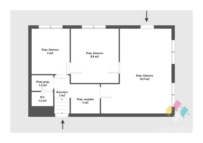
Lokal o pow. użytkowej 39,10 m2, położony na parterze. Składa się
z 3 pomieszczeń funkcjonujących jako pokoje biurowe (6 m2, 8,8 m2,
16,9 m2), pomieszczenia socjalnego (3 m2), pomieszczenia gospodarczego
(1,2 m2), wc (1,2 m2) oraz korytarza (2 m2).
Stan lokalu bardzo dobry, w 2015 roku został przeprowadzony generalny
remont.
Pomieszczenia ustawne, idealne zarówno pod działalność usługową
(np. gabinet kosmetyczny, fizjoterapeutyczny, poradnia, fryzjer) jak i
biurową.
Wykończenie estetyczne, w barwach bieli, beżu i szarości. Lokal
umeblowany i wyposażony.
Okna drewniane. Na podłodze deska podłogowa oraz terakota.
Ogrzewanie miejskie.
Instalacja alarmowa.
Istnieje możliwość wywieszenia reklamy w oknach.
Do lokalu są dwa odrębne wejścia.
OPŁATY
Cena najmu 3000 zł netto + opłaty administracyjne około 590 zł +
solid i internet około 250 zł + prąd wg zużycia.
Wymagana kaucja 3000 zł.
Termin wydania lokalu - do ustalenia.
POŚREDNIK
Marlena Gwiazda
tel. 797 - pokaż numer telefonu -
e-mail: @
Nr licencji 31504
Przedstawiona oferta cenowa ma charakter informacyjny, nie stanowi
oferty handlowej w rozumieniu art. 66 § 1 Kodeksu Cywilnego.
Właścicielem ogłoszenia wraz z jej elementami jest NewHouse Łukasz
Wróbel oraz podmioty współpracujące.
Wszelkie prawa są zastrzeżone, kopiowanie, rozpowszechnianie oraz
korzystanie z niniejszych składowych materiałów ogłoszenia w
jakikolwiek inny sposób wykraczający poza dozwolony użytek
określony przepisami ustawy z 4 lutego 1994 r. o prawie autorskim i
prawach pokrewnych (Dz. U. 1994, nr 24 poz. 83 z późn. zm.) bez
zgody NewHouse Łukasz Wróbel lub podmiotów współpracujących jest
zabronione i może stanowić podstawę odpowiedzialności cywilnej
oraz karnej.
Niniejsze materiały stanowią tajemnicę firmy NewHouse Łukasz
Wróbel lub podmiotów współpracujących w rozumieniu ustawy z dnia
16 kwietnia 1993 r. o zwalczaniu nieuczciwej konkurencji (Dz. U. z
2003 r., Nr 153, poz. 1503 z późn. zm.).
Niniejsze ogłoszenie nie stanowi oferty w rozumieniu Kodeksu
Cywilnego, lecz ma charakter informacyjny.
Sprawdź zainteresowanie tym ogłoszeniem
Wyświetlenia
Data dodania
Ostatnio widziany
Obserwujących
Wysłane zapytania
Odsłony telefonu

New House
Konto firmowe
Na Lento.pl od 04 gru 2019
Strona użytkownika
- Wypromuj ogłoszenie
- Zgłoś naruszenie
- Drukuj ulotkę
- Edytuj/usuń ogłoszenie
- Udostępnij ogłoszenie
- Dodaj na Facebook























